.
.
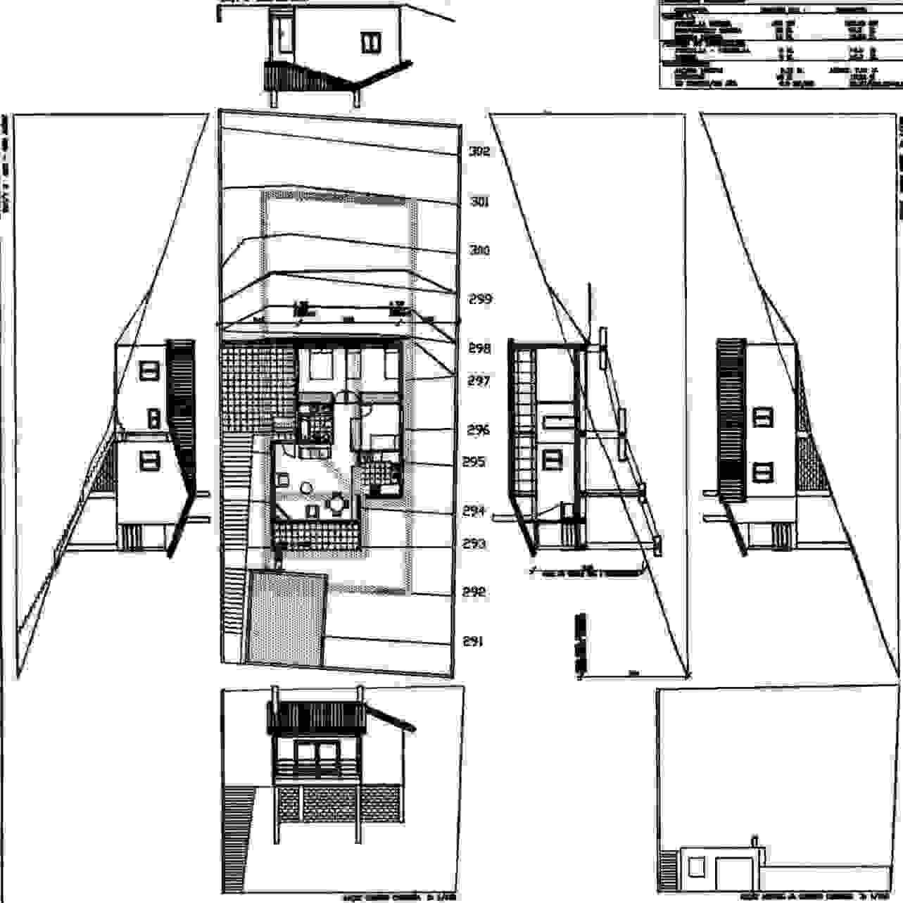
pàgina al COAC    - (1994 - 1995) - La meva primera casa -   Casa Alsina - Cueto Maurici Carbó Jordi - arquitecte
Plànol de planta vivenda (1994) Parcel·la abans de fer-hi la casa (des del Nord) (1994) Parcel·la abans de fer-hi la casa (des del Nord-Est) (1994) Parcel·la abans de fer-hi la casa (des de l'Oest) (1994) Parcel·la abans de fer-hi la casa (des deSud Oest) (1994) Fonaments dels pilars-Excavació (9-5-95) Fonaments - Excavació (9-5-95) Fonaments - Formigonat sabates dels pilars (10-5-95) Murs - Murs semi-soterrani (13-5-95) 1 pilar formigonat - (23-5-95) Part dels murs arriben a nivell de forjat (6-6-95)
Fonament de la part de dalt. (1-6-95) 1 pilar formigonat -  (23-5-95) Part dels murs arriben al forjat. Fonaments de la part de dalt (10-6-95) Pilars acabats. Mur acabat. (10-6-95) Estructura del primer forjat. (13-6-95) Trobada estructura-forjat. (15-6-95) Primer forjat - Biguetes i revoltons. (13-6-95) Primer forjat (Castellnou al fons) (13-6-95) A punt de formigonar (15-6-95) El primer forjat està formigonat.(22-6-95) Detall mur. (amb porta al semi-soterrani) (1-6-95)
Les primeres parets de la vivenda. (29-6-95) Fent el forjat de la coberta (13-7-95) Forjat acabat. Falta formigonar.(Castellnou)(13-7-95) Fent la coberta amb envanets de sostremort.(Castellnou) (20-7-95) Fent la coberta (Castellnou) (25-7-95) Coberta acabada (Castellnou)(4-8-95)
Per canviar aquesta imatge, trieu-ne una altra
Vista des del Nord-Est - Tot revestit. (16-9-95) Vista des del Nord Tot revestit. (16-9-95) Vista des de lluny (Des del Nord-Est) (Novembre 1995) Vista des de lluny (Des del Nord-Est) (Novembre 1995) Vista des de sota (Novembre de 1995) Vista des de l'Est (Novembre de 1995)
Vista des del Nord (Novembre de 1995) Vista des de l'Est(Novembre de 1995) Vista des del Nord (Novembre de 1995) Vista des del Sud (Novembre de 1995) Entrada (Novembre 1995) La cuina (Novembre de 1995)
Des de la cuina cap al balcó (Novembre de 1995) La cuina des de la sala (1995) La sala cap a les habitacions (1995) El senyor que feia la xemeneia (1995) Castellnou des del balcó (1995) Des del passadís (1995)
Marbre de la cuina i senefa d'hortalisses (1995) La xemeneia (1995) Lavabo - La banyera i la finestra (1995) Lavabo - El lavabo (1995) Lavabo - les peces (1995) Plànol de Planta - replanteig (1995)